Objekt-Nr.: WM631

Kleine 2-Raum-Wohnung mit Wohnküche und Balkon in Zentrumsnähe!

Adress Icon Bahnhofstraße 64
04720 Döbeln

389,60 €
Warmmiete
2,0
Zi.
42,40m2
Wohnfläche

Typ: Etagenwohnung
Wohnfläche ca.: 42,40m2 Zimmer: 2,0
Grundstücksfläche ca.: keine Angaben

Kosten

Kaltmiete: 220,00 € Nebenkosten: 84,80 €
Heizkosten: 84,80 €
Warmmiete: 389,60 € Kaution: 440,00 €

Bausubstanz & Energieausweis

Objektzustand: Modernisiert
Baujahr: 1899 Energieausweistyp: Verbrauchsausweis
Wesentliche Energieträger: Gas Endenergie­verbrauch: 128,10 kWh/(m2*a)
Energieausweis: Energieausweis liegt für das Gebäude vor

Ausstattung

  • Zentralheizung
  • Standard
  • Gas
  • Fliesen
  • Laminat
  • Dusche
  • Offene Küche
  • Teilkeller
  • Balkon am Schlafzimmer

Objektbeschreibung

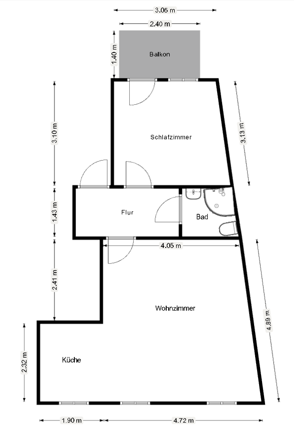
In einem gepflegten Mehrfamilienhaus in zentrumsnaher Lage ist eine kleine 2-Raum-Wohnung mit offener Küche am Wohnzimmer frei. Alle Räume sind vom Flur aus begehbar. Das Bad ohne Fenster wurde gefliest und mit einer Dusche ausgestattet. Die anderen Zimmer wurden mit Laminat versehen. Ein kleiner Balkon lädt zum Entspannen ein. Zusätzliche Lagermöglichkeiten sind durch einen Abstellraum im Keller gegeben. Außerdem ist es möglich einen PKW Stellplatz für 15€ pro Monat anzumieten, im ersten Jahr kostenfrei.

Lage

Das Döbelner Stadtzentrum erreichen Sie zu Fuß in 10 Minuten, die Bushaltestelle für den öffentlichen Nahverkehr in 5 Minuten. Mit dem Pkw erreichen Sie in kürzester Zeit die BAB A4 / A14 oder die Bundesstraßen B169 / B175 und damit die nahe gelegenen Großstädte Leipzig, Dresden und Chemnitz.  

Karte

Bahnhofstraße 64, 04720 Döbeln

Objektanfrage

Sie haben Interesse an diesem Wohnungsobjekt? Wir freuen uns auf Ihre Anfrage!